Die Hansestadt Lübeck hat ca. 210.300 Einwohner und liegt im Südosten von Schleswig-Holstein an der Ostsee. Das geschlossene Stadtbild wurde von der UNESCO zum Weltkulturerbe erklärt. Die nächstgelegenen großen Städte sind Hamburg etwa 65 km südwestlich, Kiel etwa 78 km nordwestlich und Schwerin etwa 68 km südöstlich. Lübeck grenzt unmittelbar an die Europäische Metropolregion Hamburg an. Das geplante Einfamilienhaus befindet sich im Stadtteil Niendorf in einem neuen Baugebiet in zweiter Reihe. Die Ostseeautobahn A 20 ist in etwa 4 Kilometern und das Autobahnkreuz mit der A 1 ist in rund 8 Kilometern erreichbar. Bis zum Stadtzentrum von Lübeck sind es ca. 7 Kilometer. Die Stadtbusanbindung ist fast vor der Haustür. Sichern Sie sich jetzt eine der begehrten Lagen !

Das geplante Einfamilienhaus wird in Lübeck Niendorf in traditioneller Bauweise Stein auf Stein als KfW-Effizienzhaus 70 erstellt. Das Haus erfüllt die aktuelle Energieeinsparverordnung (EnEV) mit hervorragenden U-Werten (Wärmedurchgangskoeffizient). Die Planung sieht eine DIN Wohnfläche von ca. 107 qm mit 4 Zimmern vor. Gäste-WC, Badezimmer mit Vollbad und bodentiefe Dusche, Gasbrennwerttechnik mit Solaranlage, Fenster mit 3-fach Verglasung, Braas-Dachsteinen u.v.m gehören zum hochwertigem Bauumfang. Ausführliche Informationen mit Baubeschreibung erhalten Sie gerne auf Anfrage !

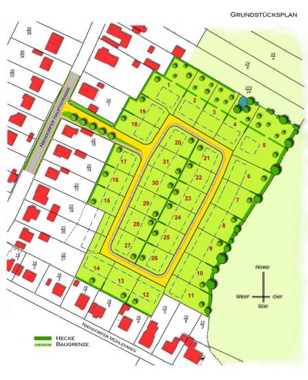
Grundstück ca. 567 qm, Einfamilienhaus in massiver Bauweise (Neubau) lt. aktueller Bau- und Leistungsbeschreibung, 4 Zimmer, Wohnfläche nach DIN ca. 107 qm
Kaufpreis ab 229.700.- EUR inkl. Grundstück
Der Angebotspreis bezieht sich auf das Grundstück mit einer Fläche von ca. 567 qm sowie das Einfamilienhaus laut aktueller Bau- und Leistungsbeschreibung.
Individuelle Wünsche sind möglich. Baunebenkosten wie z.B. Außenanlagen, Hausanschlußkosten, Notar- und Gerichtskosten, Gebühren für Behörden, Grunderwerbsteuer, Einbauküche, Maler- und Teppicharbeiten sind im aufgeführten Angebotspreis nicht enthalten. Die Fotos zeigen teilweise Sonderleistungen. Weitere Grundstücke von ca. 530 qm bis ca. 893 qm sind verfügbar.
Für den Käufer fällt keine zusätzliche Käuferprovision an.
Bitte fordern Sie Ihr persönliches Angebot an!
